Transitional

KITCHEN

Case Study

Transitional Kitchen – Case Study

KITCHEN REMODELING PROJECT

ELISE & BEN | MADISON, WI

The goal for this remodel was to give our clients’ home a modern update by opening up the floor plan and creating a kitchen that improves both the integrity and style of their home.

In order to successfully complete this project, our team tackled structural challenges such as changing the entry to the basement and moving load-bearing walls. Dark appliances and copper hardware were used to complement the white tile and beautiful Shaker-style Mouser cabinetry.

We completed the look with quartz countertops.

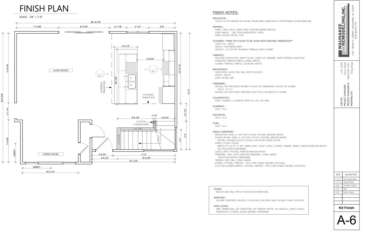
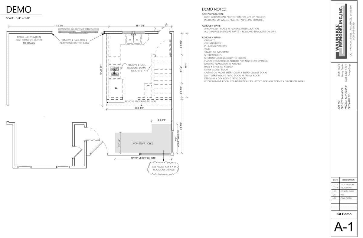
DESIGN PLAN

DETAILS

RENDERING

Transitional Kitchen – Case Study
RENDERING - PERSPECTIVE

BEFORE AND AFTER

interior of homeremodeled kitchen

WHOLE-HOUSE IMPROVEMENT

Fact: 65% of kitchens designed in the last year were transitional.

Fact: 65% of kitchens designed in the last year were transitional.

Source: NKBA

Timeless Transitional

Transitional kitchen designs are a tasteful combination of traditional and contemporary styles. Cabinets are often geometric and clean with crafted molding and other classic elements.

BEFORE

DURING

room being remodeled
worker remodeling a room
sliding doors attached to a home
remodeling of a kitchen progress
workers moving a counter into a building
partially remodeled kitchen

WR /

Our remodeling process

Transitional Kitchen – Case Study

Consultation

This in an initial interview with a project consultant to establish if we are a good match to help with your remodeling project.
Transitional Kitchen – Case Study

Design Agreement

Project consultant will present a Design Agreement based on the initial meeting.
Transitional Kitchen – Case Study

Plans & Selection

Our team of designers goes to work to create the perfect space for you and your family.
Transitional Kitchen – Case Study

Onsite Meeting

This is when the final scope, budget, drawings and selections are reviewed, revised, and approved.
Transitional Kitchen – Case Study

Project Delivery

After the construction contract has been signed, the production phase begins.
Transitional Kitchen – Case Study

Celebration

It’s time to celebrate! Your project has been completed.