Master Ensuite

CONVERSION

Case Study

Bedroom Conversion to Master Ensuite – Case Study

MASTER BEDROOM AND BATHROOM REMODELING PROJECT

JOEL & SARAH | MADISON, WI

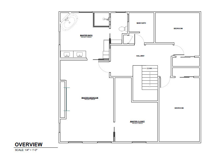
Our clients were interested in expanding their existing bedroom and bathroom by combining with a neighboring bedroom to create a spacious master suite with endless storage and a spacious updated bathroom. Embracing an updated look throughout, the suite is now complete with a sitting area, fireplace, and deep soaking tub. The traditional white cabinetry and trim blends with wood-tone flooring, countertop, and fireplace mantel.

This master ensuite is truly a beautiful retreat space – the perfect antidote to the hustle and bustle of modern life.

This master ensuite is truly a beautiful retreat space – the perfect antidote to the hustle and bustle of modern life.

Bedroom Conversion to Master Ensuite – Case Study
Bedroom Conversion to Master Ensuite – Case Study
Bedroom Conversion to Master Ensuite – Case Study
Bedroom Conversion to Master Ensuite – Case Study

REFINED CRAFTSMANSHIP

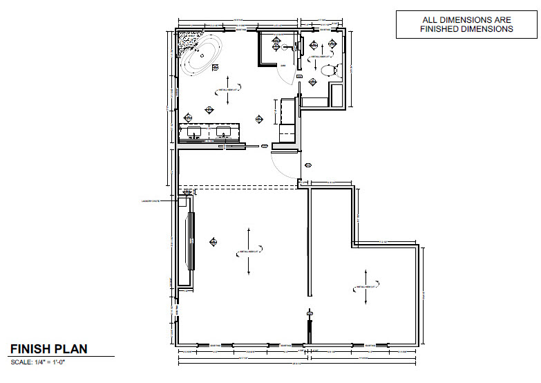
DETAILED PLANS

WR /

Our remodeling process

Bedroom Conversion to Master Ensuite – Case Study

Consultation

This in an initial interview with a project consultant to establish if we are a good match to help with your remodeling project.
Bedroom Conversion to Master Ensuite – Case Study

Design Agreement

Project consultant will present a Design Agreement based on the initial meeting.
Bedroom Conversion to Master Ensuite – Case Study

Plans & Selection

Our team of designers goes to work to create the perfect space for you and your family.
Bedroom Conversion to Master Ensuite – Case Study

Onsite Meeting

This is when the final scope, budget, drawings and selections are reviewed, revised, and approved.
Bedroom Conversion to Master Ensuite – Case Study

Project Delivery

After the construction contract has been signed, the production phase begins.
Bedroom Conversion to Master Ensuite – Case Study

Celebration

It’s time to celebrate! Your project has been completed.